Projek Baru · MJK Group · Bandar Dato Onn, JB
Freehold Kondominium · Bandar Dato Onn, JB
Kondominium freehold premium di Bandar Dato Onn — 3 tower, 1,300 unit, 45 kemudahan eksklusif. 10 minit ke RTS Link.
Maklumat Projek · Project Info
nett — paling mampu milik di Dato Onn
Hubungi Razi untuk semak kelayakan loan, harga unit terkini & rebat eksklusif.
Galeri · Gallery
Scroll untuk lihat lebih banyak gambar. Klik untuk zoom.
Tentang Projek · Overview
Kondominium freehold strata oleh MJK Group — direka untuk first-time buyer, pelabur, dan keluarga yang mahukan kehidupan berkualiti di kawasan matang Bandar Dato Onn.
| Pemaju | Leverage Global Sdn Bhd (MJK Group) |
| Lokasi | Bandar Dato Onn, Johor Bahru |
| Jenis Pegangan | Freehold (Strata Title) |
| Jenis Hartanah | Kondominium / Serviced Residence |
| Keluasan Projek | 5.1 ekar |
| Jumlah Unit | 1,300 unit kediaman + 39 shoplot |
| Tower | A (32 tkt) · B (34 tkt) · C (42 tkt) |
| Saiz Unit | 484 – 947 sq.ft |
| Maintenance Fee | RM0.30 / sq.ft |
| Kemudahan | 45 jenis kemudahan |
| Masa Siap | ±48 bulan dari SPA (2025) |
Premium Height sesuai untuk first-time buyer yang nak property berharga rendah di Dato Onn, pelabur yang nampak potensi RTS Link, dan keluarga yang nak kemudahan lengkap.
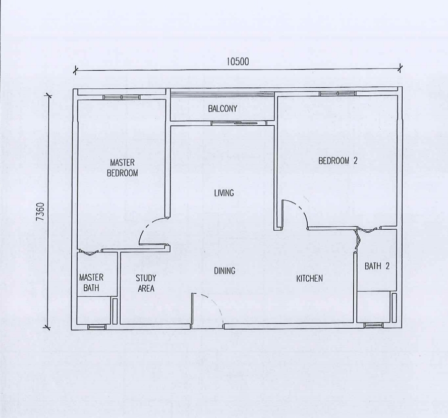
Floor Plans
Dari 1-bilik studio hingga 3-bilik luas — pilih unit yang paling sesuai dengan keperluan dan bajet anda.

1 Bilik · 484 sq.ft — Paling kompak, ideal untuk pelabur.

2 Bilik · 700 sq.ft — Untuk pasangan atau pelabur sewa.

2 Bilik · 829 sq.ft — Ruang tamu lebih lapang.

3 Bilik · 947 sq.ft — Unit terbesar, untuk keluarga.
Lifestyle Facilities
Infinity pool, mini golf, climbing gym, karaoke, artificial sand beach dan 40+ fasiliti lain.
Lokasi · Aksesibiliti
Kawasan kediaman matang dengan pelbagai kemudahan — hospital, universiti, mall, dan lebuhraya utama.
Bandar Dato Onn hanya 10-15 minit ke RTS Bukit Chagar dan CIQ. Nilai hartanah di kawasan ini dijangka meningkat pesat.

Kenapa Beli Dengan Razi?
Razi fokus kat JB — dari Permas Jaya, Taman Pelangi, sampai Iskandar Puteri. Dia tahu market ni dalam-dalam.
Ada rebat & pakej khas yang Razi boleh negotiate untuk pembeli serius. WA untuk details — tak available online.
Razi bantu semak kelayakan loan, compare bank rates, dan pastikan proses SPA smooth dari A sampai Z.
Tak perlu tunggu lama — WhatsApp sekarang dan Razi akan guide anda step by step tanpa pressure.
Daftar Minat
Tinggalkan nombor anda dan Razi akan hubungi anda dengan info terkini, harga unit, dan pakej rebat eksklusif.
Atau WhatsApp terus 👇
💬 WhatsApp Razi — 011-5406 5243